B2N
2 Bed
|
2 Bath
|
1191 SQ. FT.
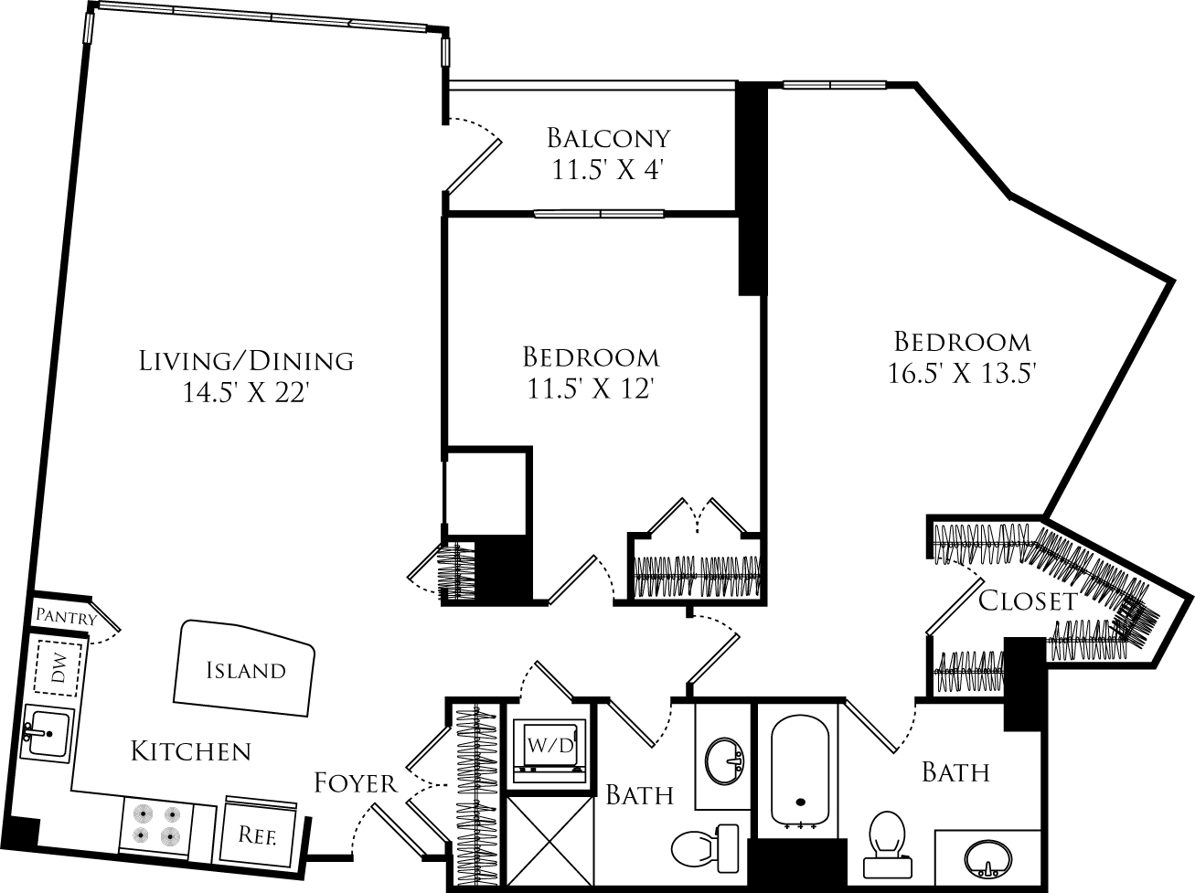
Front entry opens up into foyer with L shaped kitchen on the left with large island and a coat closet on the right. Kitchen has a small pantry. Ahead and open from the kitchen is the 14.5 feet by 22 feet living and dining area with a door on the right that has another small coat closet. Far right of the space opens to the rectangular balcony measuring 11.5 feet by 4 feet. Right from the kitchen is a hallway with the laundry room and bathroom on the right with a single sink vanity and stand up shower. Out from the bathroom and straight ahead is bedroom 1 measuring 11.5 feet by 12 feet with a walk in closet. Back to the hallway and right is a door leading to bedroom 2 measuring 16.5 feet by 13.5 feet with large walk in closet and private bath containing single sink vanity and full size shower tub combo.
Price
call for pricing
Floor plans are an artist’s rendering and may not be to scale. The landlord makes no representation or warranty as to the actual size of a unit. All square footage and dimensions are approximate, and the actual size of any unit or space may vary in dimension. The rent is not based on actual square footage in the unit and will not be adjusted if the size of the unit differs from the square footage shown. Further, actual product and specifications may vary in dimension or detail. Not all features are available in every unit. Prices and availability are subject to change. Please see a representative for details.